Разработка проекта капитального ремонта здания

Разработка проекта капитального ремонта здания

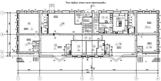
Выполнение проектных работ капитального ремонта здания Детского сада в части восстановления несущей способности конструкций, в том числе отделочных работ, замены кровли, полов и инженерных систем

Особенности проекта!

Разработка проекта капитального ремонта здания

Задачи: На основании предоставленной Заказчиком проектной документации выполнить разработку проекта капитального ремонта здания в части восстановления несущей способности конструкций

Сложности: Здание прямоугольного типа размерами в плане и прямоугольного размером в плане 38.85х11.98 м. Здание двухэтажное без подвала и без чердака. Высота помещений в чистоте – 2.93 м

Решения: В ходе проектирования разработан проект капитального ремонта, в том числе отделочных работ стен и потолков, замены кровли, полов и инженерных систем здания

Объект:Нежилое здание
Срок работ:25 дней
Заказать подобный проект

Заказать обратный звонок

оставьте завку и мы перезвоним вам в ближайшее время